天津经济技术开发区规划和自然资源局(不动产登记中心)

当前位置:首页 > 政务公开 > 法定主动公开内容

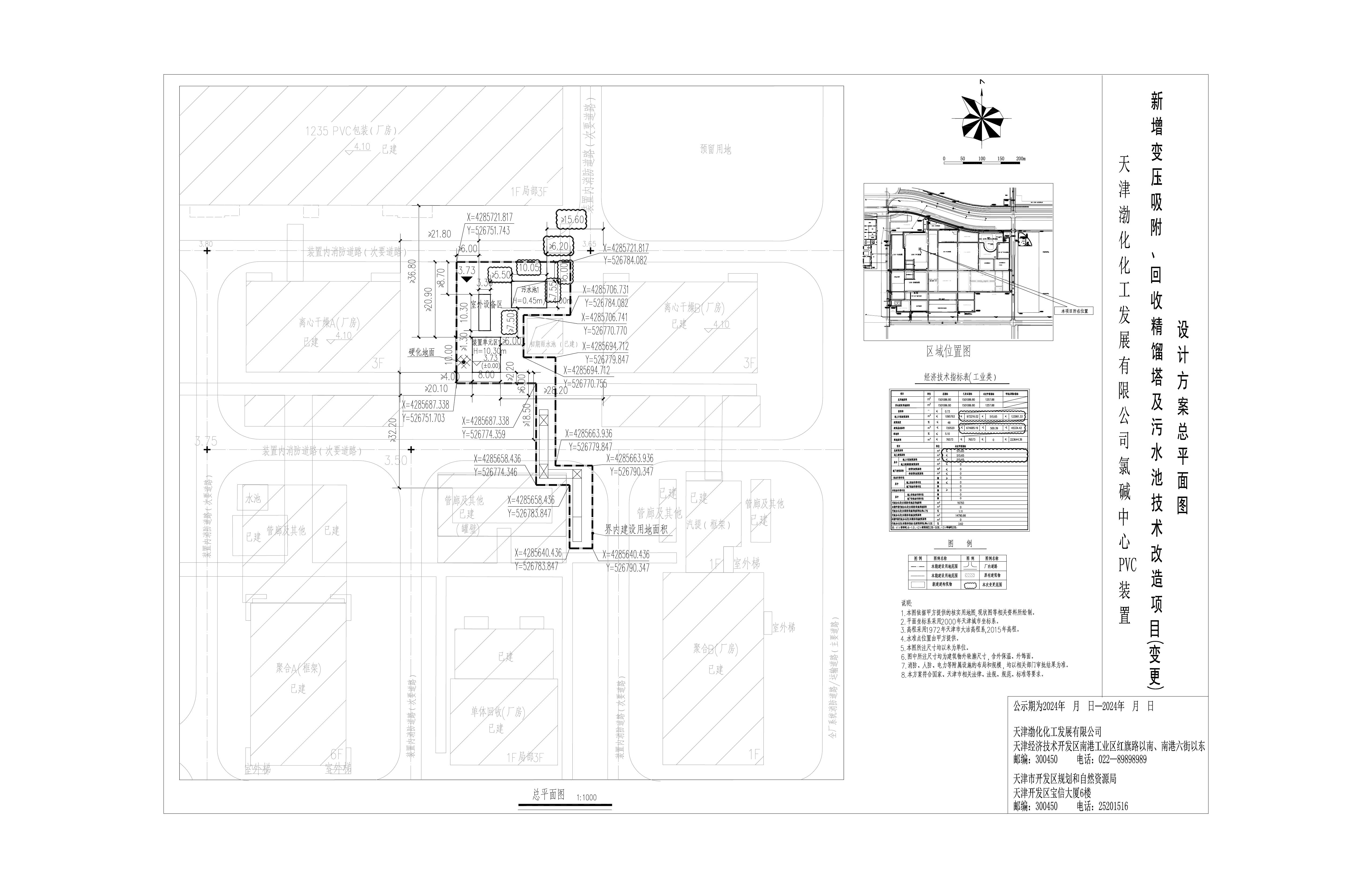
天津渤化化工发展有限公司氯碱中心
PVC装置新增变压吸附、回收精馏塔及污水池技术改造项目(变更)方案公示

发布日期:2024-11-01 15:52 来源:规划和自然资源局(不动产登记中心)
字号: |

名称:天津渤化化工发展有限公司氯碱中心
PVC装置新增变压吸附、回收精馏塔及污水池技术改造项目(变更)方案公示

发布机构: 规划和自然资源局(不动产登记中心)

  • 索引号:

  • 文 号:

  • 主题分类: 城乡建设,城乡规划

  • 有效性:

  • 成文日期:

  • 发文日期: 2024-11-01

附件:
扫一扫在手机打开当前页