天津经济技术开发区规划和自然资源局(不动产登记中心)

当前位置:首页 > 政务公开 > 法定主动公开内容

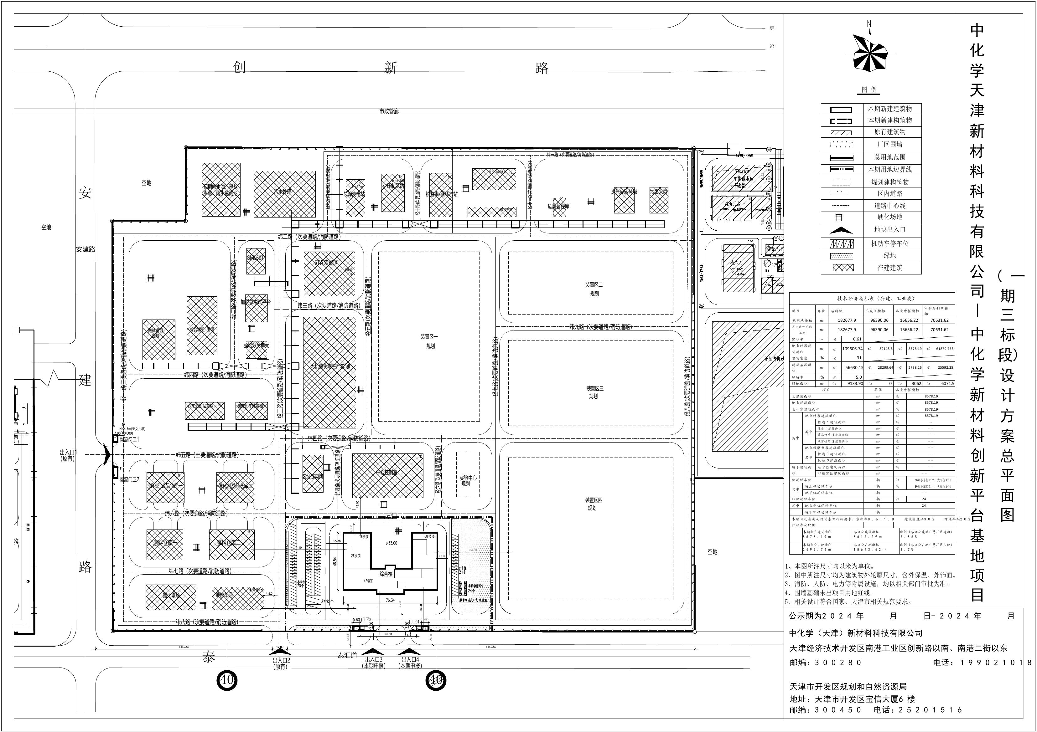
中化学(天津)新材料科技有限公司
中化学新材料创新平台基地项目(一期三标段)方案公示

发布日期:2024-12-24 15:56 来源:规划和自然资源局(不动产登记中心)
字号: |

名称:中化学(天津)新材料科技有限公司
中化学新材料创新平台基地项目(一期三标段)方案公示

发布机构: 规划和自然资源局(不动产登记中心)

  • 索引号:

  • 文 号:

  • 主题分类: 城乡建设,城乡规划

  • 有效性:

  • 成文日期:

  • 发文日期: 2024-12-24

附件:
扫一扫在手机打开当前页