天津经济技术开发区规划和自然资源局(不动产登记中心)

当前位置:首页 > 政务公开 > 法定主动公开内容

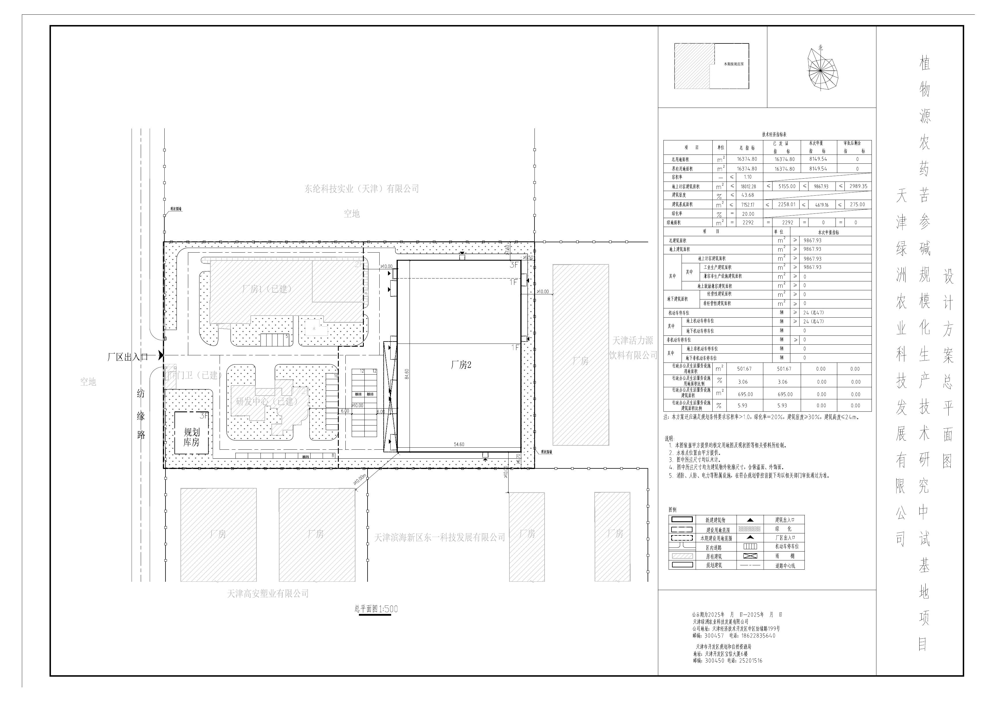
天津绿洲农业科技发展有限公司植物源农药苦参碱规模化生产技术研究中试基地项目方案公示

发布日期:2025-01-23 14:33 来源:规划和自然资源局(不动产登记中心)
字号: |

名称:天津绿洲农业科技发展有限公司植物源农药苦参碱规模化生产技术研究中试基地项目方案公示

发布机构: 规划和自然资源局(不动产登记中心)

  • 索引号:

  • 文 号:

  • 主题分类: 城乡建设,城乡规划

  • 有效性:

  • 成文日期:

  • 发文日期: 2025-01-23

附件:
扫一扫在手机打开当前页