天津经济技术开发区规划和自然资源局(不动产登记中心)

当前位置:首页 > 政务公开 > 法定主动公开内容

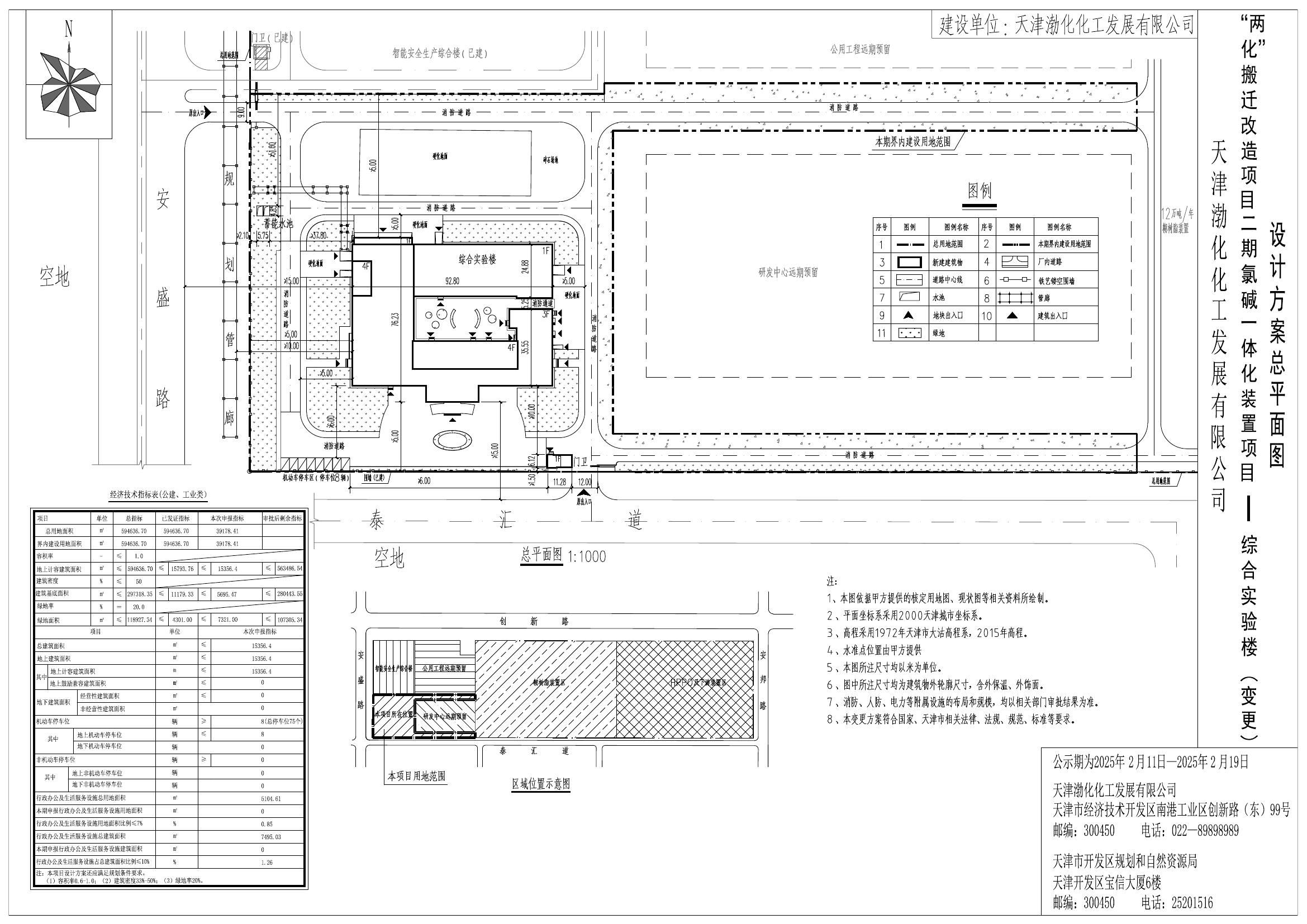
天津渤化化工发展有限公司“两化”搬迁改造项目二期氯碱一体化装置项目—综合实验楼(变更)方案公示

发布日期:2025-02-11 15:07 来源:规划和自然资源局(不动产登记中心)
字号: |

名称:天津渤化化工发展有限公司“两化”搬迁改造项目二期氯碱一体化装置项目—综合实验楼(变更)方案公示

发布机构: 规划和自然资源局(不动产登记中心)

  • 索引号:

  • 文 号:

  • 主题分类: 城乡建设,城乡规划

  • 有效性:

  • 成文日期:

  • 发文日期: 2025-02-11

附件:
扫一扫在手机打开当前页