天津经济技术开发区规划和自然资源局(不动产登记中心)

当前位置:首页 > 政务公开 > 法定主动公开内容

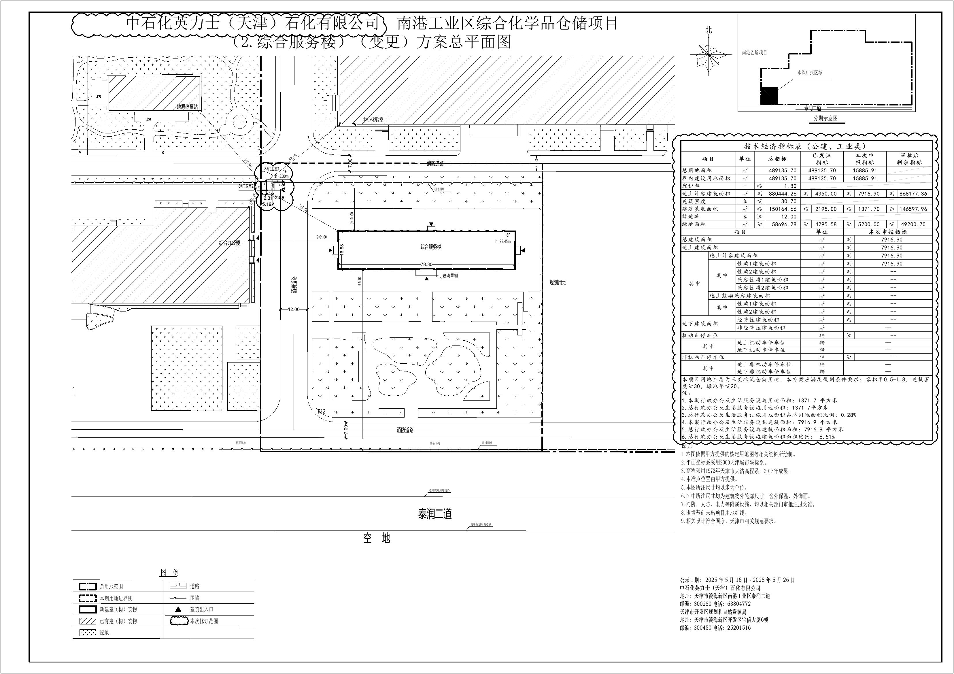
中石化英力士(天津)石化有限公司南港工业区综合化学品仓储项目(2.综合服务楼)(变更)方案公示

发布日期:2025-05-16 15:18 来源:规划和自然资源局(不动产登记中心)
字号: |

名称:中石化英力士(天津)石化有限公司南港工业区综合化学品仓储项目(2.综合服务楼)(变更)方案公示

发布机构: 规划和自然资源局(不动产登记中心)

  • 索引号:

  • 文 号:

  • 主题分类: 城乡建设,城乡规划

  • 有效性:

  • 成文日期:

  • 发文日期: 2025-05-16

附件:
扫一扫在手机打开当前页