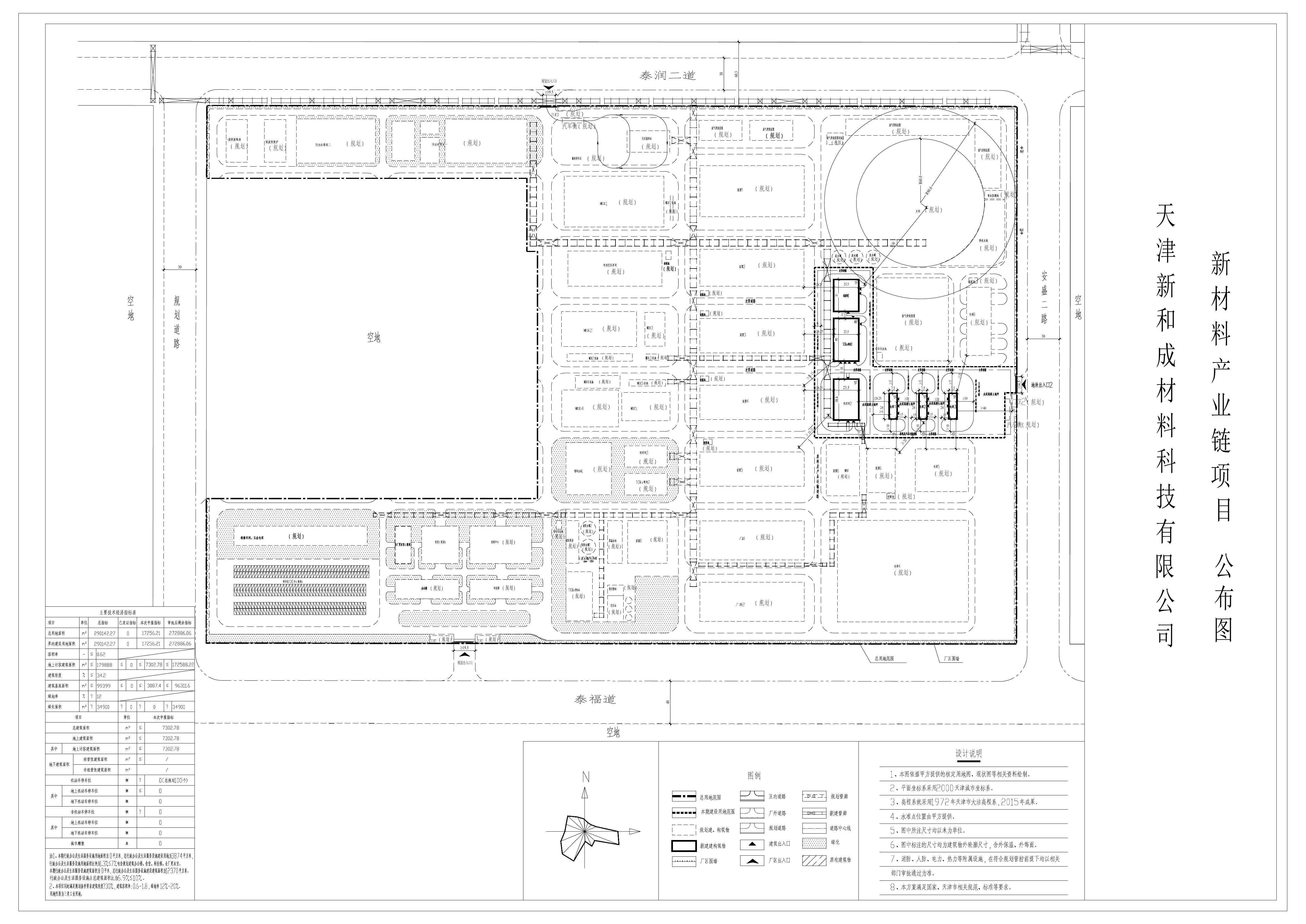
天津新和成材料科技有限公司新材料产业链项目规划方案总平面图已审批,审批时间为2025年6月5日,证书编号为2025开发建证0038。按照《中华人民共和国城乡规划法》、《天津市城乡规划条例》的要求,现将上述工程总平面图予以公布,公布期限为信息发布之日起至建设项目规划验收合格为止。
通讯地址:天津滨海新区于家堡宝信大厦裙房6楼
联系电话:022-25201516
邮政编码:300457
天津经济技术开发区规划和自然资源局
2025年6月5日
扫一扫在手机打开当前页
名称:关于天津新和成材料科技有限公司新材料产业链项目总平面图的公布
发布机构: 规划和自然资源局(不动产登记中心)
索引号:
文 号:
主题分类: 城乡建设,城乡规划
有效性:
成文日期:
发文日期: 2025-06-05
天津新和成材料科技有限公司新材料产业链项目规划方案总平面图已审批,审批时间为2025年6月5日,证书编号为2025开发建证0038。按照《中华人民共和国城乡规划法》、《天津市城乡规划条例》的要求,现将上述工程总平面图予以公布,公布期限为信息发布之日起至建设项目规划验收合格为止。
通讯地址:天津滨海新区于家堡宝信大厦裙房6楼
联系电话:022-25201516
邮政编码:300457
天津经济技术开发区规划和自然资源局
2025年6月5日