天津经济技术开发区规划和自然资源局(不动产登记中心)

当前位置:首页 > 政务公开 > 法定主动公开内容

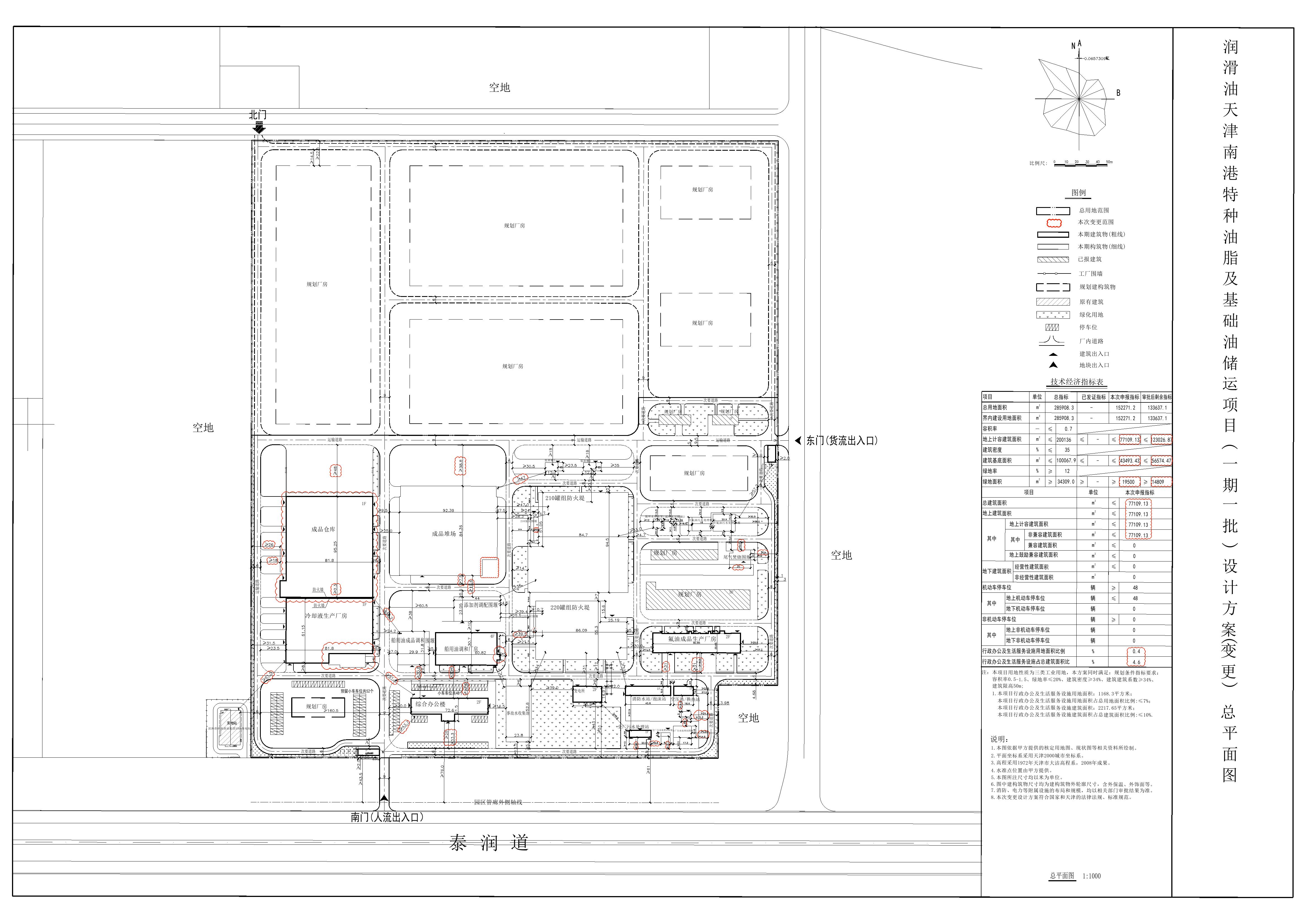
关于中石化润滑油(天津)有限公司润滑油天津南港特种油脂及基础油储运项目(一期一批)(变更)总平面图的公布

发布日期:2025-07-23 15:21 来源:规划和自然资源局(不动产登记中心)
字号: |

名称:关于中石化润滑油(天津)有限公司润滑油天津南港特种油脂及基础油储运项目(一期一批)(变更)总平面图的公布

发布机构: 规划和自然资源局(不动产登记中心)

  • 索引号:

  • 文 号:

  • 主题分类: 城乡建设,城乡规划

  • 有效性:

  • 成文日期:

  • 发文日期: 2025-07-23

中石化润滑油(天津)有限公司润滑油天津南港特种油脂及基础油储运项目(一期一批)(变更)规划方案总平面图已审批,审批时间为2025年7月23日,证书编号为2021开发建证0126。按照《中华人民共和国城乡规划法》、《天津市城乡规划条例》的要求,现将上述工程总平面图予以公布,公布期限为信息发布之日起至建设项目规划验收合格为止。

通讯地址:天津滨海新区于家堡宝信大厦裙房6楼

联系电话:022-25201516

邮政编码:300457


 

天津经济技术开发区规划和自然资源局

2025年7月23日            

附件:
扫一扫在手机打开当前页